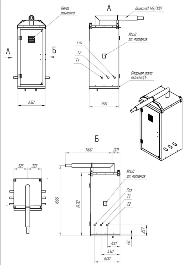
Котел наружного размещения ГАЗЭКСПЕРТ 34 КВТ
1. Котёл Hermes (Viessmann) Legacy 100-W 34 кВт Одноконтурный, конденсатный. Автоматика безопасности работы котла: контроль горения, защита от перегрева, гидравлическая безопасность, защита от замерзания (возможность использования этиленгликоля).
2. Автоматика: контроллер MyHeat Pro - погодозависимое управление- каскад- wi-fi- internet. Управление контурами отопления, ГВС, вентиляции, в комплекте со стабилизатором напряжения и источником без перебойного питания на автоматику.
3. Система электроснабжения и освещения: технологическая розетка, отдельные автоматы на всё электрооборудование, отдельный светильник, световой индикатор неисправности «Маяк».
4. Система газоснабжения: запорное устройство на вводе, катушка под счётчик газа Принц-М G4 или аналог. Все соединения из нержавеющей гофрированной трубы.
5. Система дымоудаления: Коаксиальный дымоход 60/100мм. Система отведения конденсата.
6. Модуль котла: корпус выполнен из оцинкованных листов 1,2 мм, порошковая покраска, утепленный кашированной минеральной ватой 50мм. Нагревательный элемент в комплекте поставки срабатывает при температуре +5°C и автоматически отключается при выходе на рабочую температуру.
7. Температура теплоносителя 40- 80С. Давление теплоносителя 0,8-3 бар.
